
Wohnung Spreeinsel // Berlin
Eine Neubauwohnung in Berlin wird ein harmonischer Rückzugsort in der hektischen Stadt.
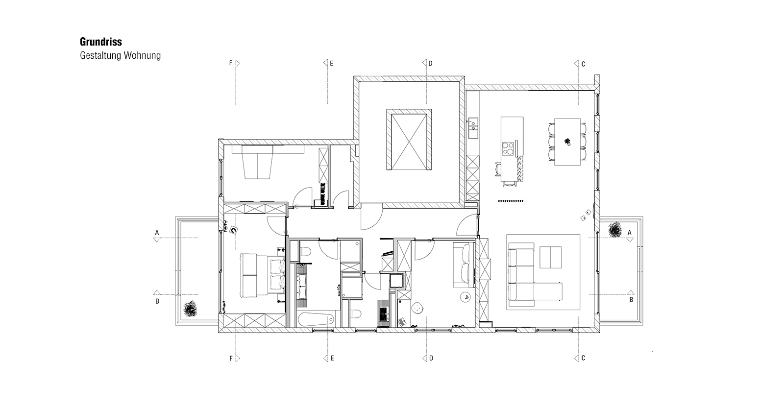
Neben der strukturellen Überarbeitung der bauträgerseits vorgeschlagenen Grundrisse, galt es ein ganzheitliches Grundkonzept für die gesamte Wohnung zu entwickeln. Um die gewünschte Ruheinsel inmitten der Stadt zu gestalten, inspirierte die Spreeinsel als Baugrund zu einem Konzept, welches geprägt ist von sanften Farben, Natürlichkeit in Form von Elementen aus Holzlatten, grafischen Akzenten und viel Licht.
Bei der strukturellen Anordnung der Möbel und Funktionsbereiche liegt der Fokus auf dem Ausblick über die Insel und auf die Spree. Sowohl tatsächliche Bezüge zwischen den einzelnen Bauteilen und Einrichtungsgegenständen, als auch visuelle Bezüge zwischen einzelnen Bereichen, wie z.B. Wohnen – Essen, werden herausgearbeitet.
Die charakteristischen Holzlattungen aus geweißter Eiche kommen an verschiedenen Stellen der Wohnung zum Vorschein, mal als Wand- oder Deckenverkleidung, mal als semi-transparente Raumteiler. Sie bieten nicht nur einen visuellen Reiz, und sorgen für einen Wohlfühlfaktor, sondern prägen auch den Charakter der Räume maßgeblich. Ergänzt werden diese Elemente dadurch, dass außer an der Decke bewusst auf weiße Flächen und Möbel verzichtet wird um alles in eine sanftere Atmosphäre zu tauchen. Einzig grafische Elemente wie Accessoires und Leuchten durchbrechen dieses einheitliche Farbschema um Kontraste zu schaffen.
Fertigstellung: 05/17
Fotos: © Z'sAM Raumkonzepte

